Skip to main content

HERIOT HILL PLANS ALARM LOCALS

Submitted by Editor on

Some locals have reacted with alarm to plans for new housing at the end of Heriot Hill Terrace (26/01422/FUL). 

 

Darlington-based Mandale Homes (MH) proposes demolishing the unremarkable structure at Nos 32–34 (where the Busy Bees Nursery operated until early 2024) and building 10 new townhouses on the site.

 

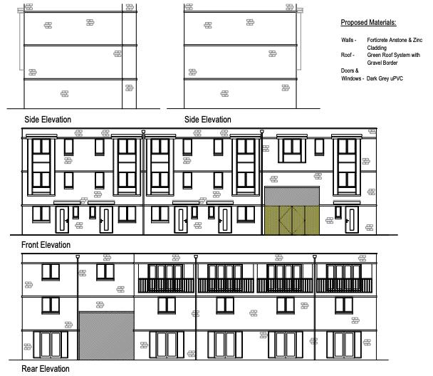
The 3-storey homes would each have 3-bedrooms, 5 with integral parking and bike store. They would be clustered in 3 blocks (of 4, 4 and 2 dwellings), each with its own garden space. Those 5 homes with smaller gardens would have balconies. All the properties would have flat (green) roofs.

 

Materials for the construction would include coursed artificial stone, with precise details to be determined later. MH says the height and design of the dwellings are appropriate in terms of existing housing nearby. The plans take account of potentially contaminated land on the site.

 

HHT

 

MH says the development’s design would minimise impacts on nearest neighbours in Claremont Grove, with windows facing gables. ‘[F]uture and existing residents would enjoy suitable levels of outlook, privacy, and daylight post-development.’

 

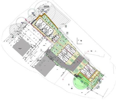
LAYOUT

There have been changes to the design since pre-application proposals first surfaced in 2025 (25/03590/PREAPP). These include the exclusion of one unit (to preserve nearby trees), a reduction in parking, and improved visibility/highway safety of access arrangements.

 

In its Planning, Design, and Access Statement, MH says the plans pay sufficient heed to planning considerations about: the principle of development; design, ecology and trees, environmental health; flood risk and drainage; highways and parking; residential amenity; and sustainability.

 

It is worth repeating that this proposal is not the same as the controversial one for 8 townhouses on land adjacent to 62 Broughton Road (15/02335/FUL), initially refused by the Council in February 2016, later approved on appeal to the Scottish Government in October 2016 (DPA-230-2182) but never built (Issue 257).

 

HHT2

Some residents are unhappy about the plans, describing the development as cramped. 

 

Others fear construction would worsen ‘settlement’ problems already experienced by householders on the sandy soil of Claremont Bank. 

 

There are concerns about vibration during the building phase, and about reduction of light for near neighbours.

 

One resident told Spurtle, ‘The impact on all of us is terrible to contemplate.’

 

Anyone wishing to comment on the proposal can do so here by 6 May 2026. 

 

A determination is expected by 12 June 2026. 

 

Got a view? Tell us at spurtle@hotmail.co.uk

 

 

-----------

PH
Topics
Location